Кондиционеры для монтажа на боковую панель шкафа AC EM
(O.ERRE)


Охлаждение с помощью кондиционера

Кондиционирование позволяет получить требуемую температуру воздуха в шкафу даже, если температура воздуха снаружи шкафа выше требуемой, и применение вентиляции для удаления тепла невозможно. Также система кондиционирования обеспечивает полное разделение воздуха в шкафу и воздуха снаружи шкафа.


• Наружные кондиционеры для монтажа на боковую панель шкафа;
• Поддержание температуры независимо от температуры окружающего воздуха;
• Выполнение требований по разделению воздуха в шкафу и воздуха снаружи шкафа;
• Герметичный компрессор, теплообменники из медных труб с алюминиевым оребрением;
• Заправлены хладагентом R134a;
• Простое обслуживание, нет воздушных фильтров;
• Степень защиты IP54 со стороны шкафа;
• Внутренний и внешний вентилятор на шарикоподшипниках;
• Корпус из окрашенной стали, серый цвет RAL 7035;
• Простой монтаж;
• Применяется, если требуется низкая температура в шкафу и высокая степень защиты.


Технические характеристики
 
Модель Полная   Потреб. Напря- Номинал. Расход воздуха Уровень  
холодопроизводительность, Вт мощность, жение,  ток, внутренним шума, Вес,
L35L35 по L35L50 по Вт В/Гц А вентилятором, дБ (А), кг
DIN  3168/EN814 DIN  3168/EN814       м3 3 м  
AC EM 040 400 290 270 230/50 1,5 180 58 26
AC EM 065 640 470 305 230/50 1,65 280 60 25
AC EM 085 850 640 410 230/50 2,2 280 65 26
AC EM 110 1080 830 520 230/50 3,1 570 62 40
AC EM 150 1500 1150 740 230/50 4,2 570 62 40
AC EM 200 2000 1560 1090 230/50 4,9 860 60 43
.




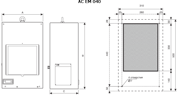
Модель A B C
AC EM 40 310 500 216
.





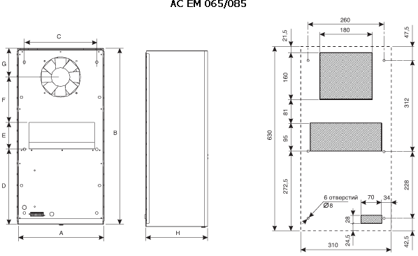
Модель A B C D E F G H
 AC EM 065/085 313 630 260 269,5 232 95 103 222
.





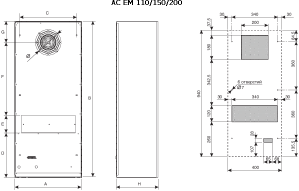
Модель A B C D E F G H Ø
 AC EM 110/150/200 403 940 340 267,2 105 438,5 128 250 155
.



График расчета теплового баланса


Для правильного выбора вентилятора воспользуйтесь графиком.
В первую очередь определите тепловыделения, создаваемые оборудованием в шкафу.
    - Максимально допустимую температуру внутри шкафа.
    - Максимальную температуру окружающего шкаф воздуха.
• Вычислите разницу ∆Т (перепад температуры) между этими температурами.
• Точка пересечения горизонтальной линии (тепловыделение) с наклонной линией (требуемый ∆Т) даст необходимый расход воздуха вентилятора.
• Выберите подходящий вентилятор.
При выборе нужно учитывать естественные теплопотери через стенки шкафа и сделать запас 20% на уменьшение расхода воздуха при загрязнении фильтров.










Способы монтажа

• Наружный
• Частично скрытый (требуется адаптер)
• Скрытый (требуется адаптер)


Модель a b c d e
 AC EM 40 216 100 116 190 26
AC EM 065/085 220 110 110 180 40
AC EM 110/150/200 249 100 151 225 26
.


Аксессуары
 
Описание Для модели
ARACEMS Адаптер для скрытого монтажа для AC EM 040
ARACEMM  Адаптер для скрытого монтажа для AC EM 065 – 085
ARACEML  Адаптер для скрытого монтажа для AC EM 110 – 200
APRACEMS  Адаптер для частично скрытого монтажа для AC EM 040
APRACEMM  Адаптер для частично скрытого монтажа для AC EM 065 – 085
APRACEML  Адаптер для частично скрытого монтажа для AC EM 110 – 200
FHACEMS  Держатель фильтра (полиуретановый фильтр в комплекте) для AC EM 040 – 085
FHACEML  Держатель фильтра (полиуретановый фильтр в комплекте) для AC EM 110 – 200
FPACEMS  Полиуретановый фильтр для AC EM 040 – 085
FPACEML  Полиуретановый фильтр для AC EM 110 – 200
FOACEMS  Маслостойкий фильтр для AC EM 040 – 085
FOACEML  Маслостойкий фильтр для AC EM 110 – 200
.


Последнее обновление 26.11.13
Производитель оставляет за собой право вносить изменения в продукцию без предварительного уведомления.
Внешний вид и характеристики продукции могут отличаться от представленных на сайте.