Кондиционеры для монтажа на крышу шкафа AC RM
(O.ERRE)


Охлаждение с помощью кондиционера

Кондиционирование позволяет получить требуемую температуру воздуха в шкафу даже, если температура воздуха снаружи шкафа выше требуемой, и применение вентиляции для удаления тепла невозможно. Также система кондиционирования обеспечивает полное разделение воздуха в шкафу и воздуха снаружи шкафа.


• Поддержание температуры независимо от температуры окружающего воздуха;
• Выполнение требований по разделению воздуха в шкафу и воздуха снаружи шкафа;
• Герметичный компрессор, теплообменники из медных труб с алюминиевым оребрением;
• Заправлены хладагентом R134a;
• Простое обслуживание;
• Степень защиты IP54 со стороны шкафа;
• Внутренний и внешний вентилятор на шарикоподшипниках;
• Корпус из окрашенной стали, серый цвет RAL 7035;
• Простой монтаж;
• Встроенный электронный термостат;
• Диапазон температуры наружного воздуха 0-55°C;
• Применяется, если требуется низкая температура в шкафу и высокая степень защиты.


Технические характеристики
 
Модель Полная   Потреб. Напря- Номинал. Расход воздуха Уровень  
холодопроизводительность, Вт мощность, жение,  ток, внутренним шума, Вес,
L35L35 по L35L50 по Вт В/Гц А вентилятором, дБ (А), кг
DIN  3168/EN814 DIN  3168/EN814       м3 3 м  
AC RM 060 600 420 370 230/50 2,2 570 60 38
AC RM 080 800 600 400 230/50 2,4 570 60 39
AC RM 110 1100 780 515 230/50 2,9 570 60 42
AC RM 150 1500 1240 750 230/50 4,0 860 65 45
AC RM 170 1700 1360 870 230/50 4,6 860 65 46
AC RM 210 2100 1560 1040 230/50 5,0 860 65 48
.




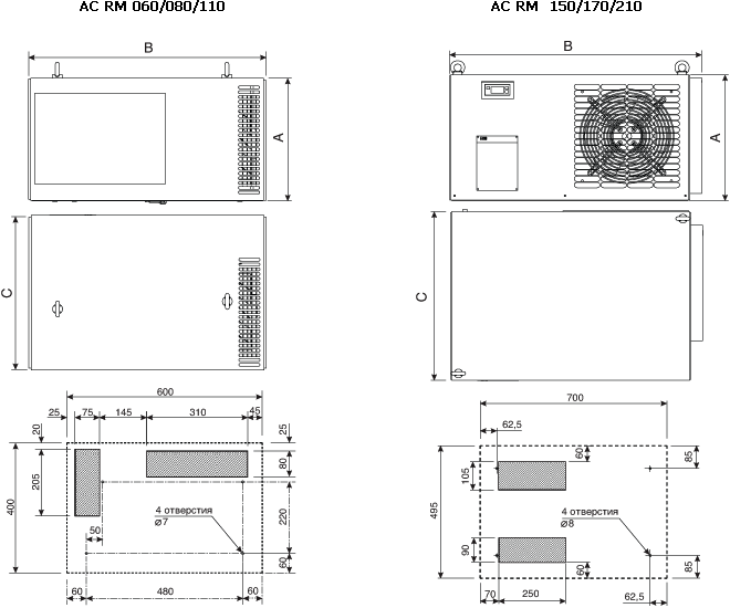
Модель A B C
 AC RM 060/080/110 321 617 400
 AC RM 150/170/210 370 700 495
.



График расчета теплового баланса


Для правильного выбора вентилятора воспользуйтесь графиком.
В первую очередь определите тепловыделения, создаваемые оборудованием в шкафу.
    - Максимально допустимую температуру внутри шкафа.
    - Максимальную температуру окружающего шкаф воздуха.
• Вычислите разницу ∆Т (перепад температуры) между этими температурами.
• Точка пересечения горизонтальной линии (тепловыделение) с наклонной линией (требуемый ∆Т) даст необходимый расход воздуха вентилятора.
• Выберите подходящий вентилятор.
При выборе нужно учитывать естественные теплопотери через стенки шкафа и сделать запас 20% на уменьшение расхода воздуха при загрязнении фильтров.









Аксессуары
 
Описание Для модели
FPACRMS  Полиуретановый фильтр для AC RM 060 – 110
FPACRML  Полиуретановый фильтр для AC RM 150 – 210
FOACRMS  Маслостойкий фильтр для AC RM 060 – 110
FOACRML  Маслостойкий фильтр для AC RM 150 – 210
.


Последнее обновление 26.11.13
Производитель оставляет за собой право вносить изменения в продукцию без предварительного уведомления.
Внешний вид и характеристики продукции могут отличаться от представленных на сайте.