|
|||||||||||||||||||||||||||||||||||||||||||||||||||||||||||||||||||||||||||||||||||||||||||||||||||||||||||||||||||||||||||||||||||||||||||||||||||||||||||||||||||||||||||||||||||||||||||||||||||||||||||||||||||||||||||||||||||||||||||||||||||||||||||||||||||||||||||||||||||||||||||||||||||||||||||||||||||||||||||||||||||||
|
Дестратификаторы ДФР
(Арктос)
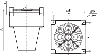
Чертеж, Размеры |
Технические характеристики |
Значения скорости воздушного потока |
Методика подбора |
Монтаж, Схемы подключения
Дестратификаторы ДФР предназначены для создания подвижности воздуха и уменьшения его температурного расслоения в помещениях с высокими потолками, таких как спортивные залы, торговые комплексы, вокзалы, склады, ангары, производственные цеха и т.п. Применение дестратификаторов ДФР позволяет существенно снизить затраты на обогрев помещения за счет подачи в рабочую зону скапливающегося под потолком теплого воздуха.
Дестратификаторы собраны в прочном стальном корпусе, оснащены защитной решёткой и воздуховыпускным соплом, обеспечивающим увеличение скорости истечения воздуха и его дальнобойности. Дестратификатор комплектуется кронштейнами и окрашивается методом порошкового напыления в серый цвет (RAL 7047). Регулирование скорости Регулирование скорости дестратификаторов осуществляется в диапазоне от 0 до 100% с помощью 5-ступенчатого регулятора скорости. К одному регулятору скорости можно подключать несколько дестратификаторов при условии, что общий рабочий ток дестратификаторов не превышает номинальный ток регулятора скорости. Защита двигателя Все двигатели имеют встроенный термоконтакт. Аксессуары Регуляторы скорости, термостаты, модули управления. | |||||||||||||||||||||||||||||||||||||||||||||||||||||||||||||||||||||||||||||||||||||||||||||||||||||||||||||||||||||||||||||||||||||||||||||||||||||||||||||||||||||||||||||||||||||||||||||||||||||||||||||||||||||||||||||||||||||||||||||||||||||||||||||||||||||||||||||||||||||||||||||||||||||||||||||||||||||||||||||||||||||
![]() | |||||||||||||||||||||||||||||||||||||||||||||||||||||||||||||||||||||||||||||||||||||||||||||||||||||||||||||||||||||||||||||||||||||||||||||||||||||||||||||||||||||||||||||||||||||||||||||||||||||||||||||||||||||||||||||||||||||||||||||||||||||||||||||||||||||||||||||||||||||||||||||||||||||||||||||||||||||||||||||||||||||
| |||||||||||||||||||||||||||||||||||||||||||||||||||||||||||||||||||||||||||||||||||||||||||||||||||||||||||||||||||||||||||||||||||||||||||||||||||||||||||||||||||||||||||||||||||||||||||||||||||||||||||||||||||||||||||||||||||||||||||||||||||||||||||||||||||||||||||||||||||||||||||||||||||||||||||||||||||||||||||||||||||||
| |||||||||||||||||||||||||||||||||||||||||||||||||||||||||||||||||||||||||||||||||||||||||||||||||||||||||||||||||||||||||||||||||||||||||||||||||||||||||||||||||||||||||||||||||||||||||||||||||||||||||||||||||||||||||||||||||||||||||||||||||||||||||||||||||||||||||||||||||||||||||||||||||||||||||||||||||||||||||||||||||||||
|
Для подбора дестратификаторов необходимы следующие исходные данные: ¤ архитектурные чертежи обслуживаемого помещения и планы размещения технологического оборудования; ¤ расчётный перепад температур ∆t0 между температурой в зоне установки изделия и в обслуживаемой зоне помещения; ¤ скорость воздуха в обслуживаемой зоне (если нормируется). В результате подбора определяются: модель и количество дестратификаторов, схема их размещения, высота установки и скорость в обслуживаемой зоне. Общие рекомендации: ¤ кратность воздухообмена, обеспечиваемая дестратификаторами, должна быть не менее 1,7 ÷ 2,0 ч-1; ¤ расчётный перепад температур ∆t0 между температурой в зоне установки изделия и в обслуживаемой зоне помещения следует принимать в пределах диапазона рационального применения дестратификаторов ∆t0 = 5 ÷ 20°С. Рекомендации по размещению дестратификаторов: ¤ дестратификаторы следует размещать симметрично и равномерно по площади обслуживаемого помещения; ¤ при определении площади помещения, обслуживаемой одним дестратификатором, рекомендуется соблюдать условие (см. рис. 1 и рис. 2):
¤ в помещениях с преимущественно плоскими потолками рекомендуется устанавливать дестратификаторы на максимальной, исходя из условий размещения, высоте; при этом, для обеспечения нормального забора воздуха, расстояние между потолком или иным препятствием и верхом корпуса дестратификатора должно быть не менее 500 мм; ¤ в помещениях с коньковой крышей дестратификаторы рекомендуется размещать на высоте h0 ≈ 0,7 x hпом, м (высота помещения определяется по средней высоте конька); ¤ расстояние между смежными дестратификаторами следует принимать не менее 0,5 x h0, м.
Дано: помещение цеха длиной a = 60 м, шириной b = 27 м, высотой hпом = 14 м с плоской крышей, в котором в холодный период года возникают условия устойчивого формирования температурной стратификации по высоте помещения величиной ∆t0 = 10°С; высота обслуживаемой зоны hо.з. = 2 м. Определить: типоразмер и количество дестратификаторов, высоту их установки и размещение по площади помещения для двух вариантов: «А» нормируемая скорость воздуха в обслуживаемой зоне Vx = 1,0 м/с. «Б» скорость воздуха в обслуживаемой зоне не нормируется (помещение с полностью автоматизированным технологическим оборудованием); Решение для варианта «А»: 1. Задаём высоту установки ДФР h0 = 12 метров. 2. По таблице "Значения максимальной скорости воздушного потока при его внедрении в обслуживаемую зону при различных ∆t0 и h0" выбираем модели, обеспечивающие скорость на входе в обслуживаемую зону не более 1,0 м/с – ДФР 300 и ДФР 350. Выбираем модель с большим расходом воздуха – ДФР 350 (L=2500 м3/ч). 3. Определяем количество ДФР исходя из объёма помещения и кратности воздухообмена. Объём помещения Vпом = 60 x 27 x 14 = 20160 м3. Количество ДФР 350: N = 2 x Vпом / L0 = 40320/2500 ≈ 18 шт. 4. Расставляем ДФР 300 в три ряда, вдоль длинной стороны; минимальное расстояние между смежными изделиями 60:6 = 10 м больше минимально допустимого 0,5 x h0. 5. Проверяем размер модуля помещения, обслуживаемого одним дестратификатором, на соответствие условию: ![]() - удовлетворяет рекомендуемому диапазону. Подбор окончен.
Решение для варианта «Б»: 1. Задаём высоту установки ДФР h0 = 12 метров. 2. Определяем модель и количество ДФР исходя из объёма помещения и кратности воздухообмена. Объём помещения Vпом = 60 x 27 x 14 = 20160 м3. Общий расход воздуха дестратификаторов LОБЩ = 2 x Vпом = 40320 м3/ч. Выбираем дестратификатор самого большого типоразмера – ДФР 500. Количество ДФР 500: N = 2,0 x Vпом / L0 = 40320/7000 ≈ 6 шт. 3. Расставляем ДФР 500 в один ряд посередине помещения, вдоль длинной стороны; расстояние между смежными изделиями больше минимально допустимого 0,5 x h0. 4. Проверяем размер модуля помещения, обслуживаемого одним дестратификатором, на соответствие условию: ![]() – удовлетворяет рекомендуемому диапазону. Подбор окончен.
| |||||||||||||||||||||||||||||||||||||||||||||||||||||||||||||||||||||||||||||||||||||||||||||||||||||||||||||||||||||||||||||||||||||||||||||||||||||||||||||||||||||||||||||||||||||||||||||||||||||||||||||||||||||||||||||||||||||||||||||||||||||||||||||||||||||||||||||||||||||||||||||||||||||||||||||||||||||||||||||||||||||
|
Монтаж
¤ Все дестратификаторы поставляются полностью в собранном виде, готовые к подключению. ¤ Электрическое подключение и монтаж должны выполняться только квалифицированным персоналом в соответствии с инструкцией по монтажу. ¤ Параметры электропитания должны соответствовать спецификации на табличке дестратификатора. ¤ Вся электропроводка и соединения должны быть выполнены в соответствии c правилами техники безопасности. ¤ Электрическое подключение должно выполняться в соответствии со схемой подключения, приведённой на клеммной коробке, согласно маркировке клемм. ¤ Питающее напряжение на дестратификаторы с вынесенными термоконтактами всегда должно подаваться через внешнее устройство, отключающее питание при размыкании термоконтактов. ¤ Дестратификаторы должны быть заземлены. ¤ Дестратификаторы должны быть смонтированы таким образом, чтобы имелся доступ для безопасного обслуживания. Условия работы ¤ Дестратификаторы не должны эксплуатироваться во взрывоопасных помещениях, недопустимо соединение с дымоходами. ¤ Дестратификаторы не допускается использовать для перемещения взрывчатых газов, пыли, сажи, муки и т.п. ¤ Дестратификаторы предназначены для непрерывной работы. Не рекомендуется производить частое включение и выключение дестратификаторов. Обслуживание Единственное требуемое обслуживание – очистка. Рекомендуется производить осмотр и очистку дестратификатора каждые шесть месяцев непрерывной эксплуатации для предотвращения дисбаланса вентилятора или преждевременного выхода из строя. Перед обслуживанием убедитесь, что ¤ Прекращена подача напряжения. ¤ Крыльчатка вентилятора полностью остановилась. ¤ Двигатель и крыльчатка полностью остыли. При очистке дестратификатора ¤ Не используйте агрессивные моющие средства, острые предметы и устройства, работающие под высоким давлением. ¤ Следите, чтобы не нарушилась балансировка крыльчатки вентилятора и отсутствовали ее перекосы. ¤ В случае ненормально высокого шума работы дестратификатора проверьте крыльчатку на перекос. ¤ Подшипники, в случае повреждения, подлежат замене. В случае неисправности ¤ Проверить, поступает ли напряжение на дестратификатор. ¤ Отключить напряжение и убедиться, что крыльчатка не заблокирована и не сработало внешнее устройство термозащиты двигателя. ¤ Проверить подключение конденсатора (1-фазные). Если после проверки дестратификатор не включается или срабатывает внешнее устройство термозащиты двигателя, свяжитесь с вашим поставщиком. ¤ В случае возврата дестратификатора – очистить крыльчатку; двигатель и соединительные провода не должны иметь повреждений; обязательно наличие письменного описания неисправности – заявления.
| |||||||||||||||||||||||||||||||||||||||||||||||||||||||||||||||||||||||||||||||||||||||||||||||||||||||||||||||||||||||||||||||||||||||||||||||||||||||||||||||||||||||||||||||||||||||||||||||||||||||||||||||||||||||||||||||||||||||||||||||||||||||||||||||||||||||||||||||||||||||||||||||||||||||||||||||||||||||||||||||||||||
|
Последнее обновление 22.12.14
Производитель оставляет за собой право вносить изменения в продукцию без предварительного уведомления. Внешний вид и характеристики продукции могут отличаться от представленных на сайте. |
|||||||||||||||||||||||||||||||||||||||||||||||||||||||||||||||||||||||||||||||||||||||||||||||||||||||||||||||||||||||||||||||||||||||||||||||||||||||||||||||||||||||||||||||||||||||||||||||||||||||||||||||||||||||||||||||||||||||||||||||||||||||||||||||||||||||||||||||||||||||||||||||||||||||||||||||||||||||||||||||||||||